Дом, Молодежная, 20 Показать на карте
Карымское пгт
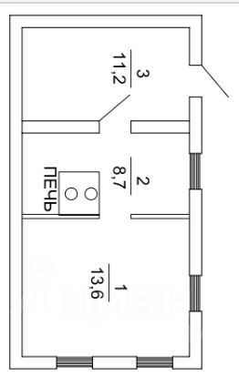
Продаётся благоустроенный добротный жилой дом площадью 69 м² с рациональной планировкой, включающей три изолированные комнаты, просторную гостиную и функциональную кухню. Отдельный санузел оборудован душевой кабиной.Для комфортного проживания в доме установлены пластиковые окна и современная система отопления на основе твёрдо топливного котла Zota Bulat с продолжительностью работы до 24 часов от одной загрузки, а так же автономная канализация обеспечивающая полную независимость. На территории расположена скважина с питьевой чистой водой, отапливаемый гараж на два автомобиля, а также баня 4х5 метров с отдельным входом и переходом в дом, где предусмотрено зонирование на парилку, помывочную и раздевалку с отделкой из натуральной вагонки.Имеется капитальное подвальное помещение выложенное кирпичом для хранения картофеля, консервации и питьевой воды: 2 ёмкости из нержавеющей стали объемом около 2 куб. Для садоводства и огородничества имеется 15 соток земли, две теплицы, летний водопровод и плодово-ягодные насаждения, а для хозяйственных нужд предназначены мастерская и тепляк площадью 36 м².Забор выполнен из профлиста.В шаговой доступности, в 20 минутах находится детский сад и школы, что делает данный дом и земельный участок идеальным для семьи. Документы готовы к сделке, обременения отсутствуют, строительство завершено в 2002 году. Мебель остаётся по договорённости. Компания ''Этажи'' обеспечит полную безопасность и юридическое сопровождение сделки, чтобы вы могли быть уверены в своем выборе. Звоните прямо сейчас, чтобы записаться на просмотр и сделать первый шаг к вашей новой жизни! Код пользователя: 176593Номер в базе: 10228181
69 м2
1 этаж
- Показать контакты
- Добавить в избранное
69 м2
1 этаж
5 500 000
79 480 /м2
