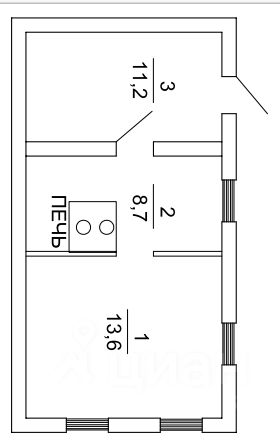
Не большой дом в центре поселка площадью 28 кв. м. на участке площадью 13 сот. На участке имеются постройки: дом, зимний тепляк. гараж с смотровой ямой, баня. Цена 1600000 руб. Дом в собственности с документами, без обременений и ограничений.
Всвязи с повышением цен в следующем году цена установлена до нового года.











