1-к, Текстильщиков, 36 Показать на карте
Чита
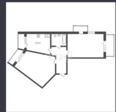
- Продается замечательная, уютная 1-комнатная квартира на 3-м этаже 5-ти этажного панельного дома, 1979 год постройки, квартира очень теплая, состояние заезжай и живи - В квартире пластиковые окна, свежие биметаллические радиаторы, на полу линолеум-Сан. узел совмещенный, на стенах и полу кафельная плитка- Имеется балкон - Спокойные, воспитанные соседи, которые следят за порядком в доме, занимаются украшением и благоустройством в подъезде, а также во дворе- Площадь квартиры 27 кв. м. (площадь балкона отдельно), кухня 6 кв. м., комната жилая 13 кв. м., отлично подойдет для молодой семьи или для людей в возрасте, которые не хотят переплачивать за стоимость жилья, а также коммунальные платежи, одним словом комфортное и бюджетное жилье в развитом районе, где все необходимое для комфортной жизни находится в пешей доступности от дома- Развитая инфраструктура : в шаговой доступности школы, детские сады, различные магазины, Хлеб Соль, Читинка, Фикспрайс, ателье , аптеки и т. д.- В паре минут от дома находятся Школы 26, 52, Детские сады 81, 69, 50, 34, в связи с чем, данное расположение квартиры становится очень привлекательным для семей с детьми, Ваш ребенок сможет самостоятельно посещать школу и спокойно возвращаться до дома, отвести ребенка в детский сад также займет у Вас не более 5-10 минут - Остановки общественного транспорта также находятся вблизи дома- Дорогие покупатели, порадуйте себя отличным приобретением, звоните, приезжайте на просмотр, чтобы самостоятельно убедиться в том, что квартира действительно достойная по своим характеристикам и за умеренную цену!- Продажей квартиры занимается специалист по недвижимости и юрист. Уважаемые коллеги, услуги пожалуйста не предлагайте, но при наличии реального покупателя , звоните, обязательно обсудим сотрудничество!
27 м2
3 / 5 этаж
Панель
- Показать контакты
- Добавить в избранное
27 м2
3 / 5 этаж
Панель
4 000 000
148 148 /м2
