2-к, Железобетонная, 1/4 Показать на карте
Чита
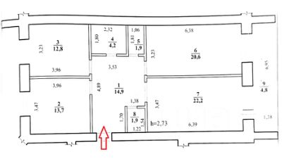
Строим кварталы для жизни с заботой о будущем. Предлагается 2-комнатная квартира комфорт-класса площадью 63.42 кв.м в корпусе 2.1КВ на 16-м этаже, в жилом комплексе ''Рябиновая Роща''.Квартиры без отделки. Доступность опции ''отделка'' и возможность комплектации мебелью и декором уточняйте у застройщика. Выбирайте свое место для счастливой жизни: от уютной студии до просторной 3-комнатной квартиры. Хотите погрузиться в творческий процесс ремонта? Присмотритесь к вариантам предчистовой отделки.Если хотите сразу отпраздновать новоселье, поручите нам работы по отделке. Мы установим двери, окна и сантехнику, положим ламинат и плитку. На стенах будут обои, которые можно перекрашивать до 8 раз. По вашему желанию мы подготовим в вашей квартире все для комфортной жизни. Откройте дверь своим ключом и пройдитесь по комнатам. Там уже будет мебель, светильники и другие элементы декора. А на кухне бежевых оттенков есть все, чтобы сразу приготовить вкусный ужин для близких.Приобрести квартиры возможно по специальным акциям от застройщика, с текущими условиями акций можно ознакомиться в блоке ''Акций''.Цена динамическая и может отличаться, уточняйте актуальность у застройщика.В ''Рябиновой Роще'' жители смогут наслаждаться прогулками по благоустроенной набережной и собственной рябиновой роще.До центра Читы — всего 13 минут на машине. В квартале будет 2 детских сада на 300 и 305 мест и школа на 1 100 мест. На первых этажах откроются магазины, кафе и салоны красоты. Совсем рядом появится благоустроенная набережная длиной 14 км для прогулок и утренних пробежек.''Рябиновая Роща'' — это комплекс с домами высотой от 9 до 17 этажей в монохромных оттенках с красными акцентами. Дворы проекта вдохновлены Даурским заповедником. Жители смогут заниматься спортом на свежем воздухе, собираться на праздники на общей площади или читать в рябиновой роще. Для детей — современные игровые площадки.Для автомобилистов предусмотрены 4 многоуровневых паркинга.Входы в лобби находятся на уровне земли, внутри есть места для хранения колясок и велосипедов. Квартиры с увеличенными окнами и видом на реку, гардеробными, кухнями-гостиными и гостевыми санузлами.
63 м2
16 / 17 этаж
Монолит
- Показать контакты
- Добавить в избранное
63 м2
16 / 17 этаж
Монолит
9 795 553
154 455 /м2
Новостройка,
I-2028
I-2028
