Если цена в объявлении изменится, мы сразу сообщим вам об этом на электронную почту.
Нажимая «Подписаться», вы соглашаетесь с правилами.
продам дом, № Мир СНТ, 170б6 300 000 ₽
12 фев
Дата публикации объявления
Обн. 3 апр
Дата обновления объявления
43 329 ₽/м²
Чистая продажа
Термин "Чистая продажа" означает, что в квартире никто не прописан или
есть куда выписаться и вывезти вещи. Это лучший вариант для покупателя.
Вероятность срыва сделки минимальна.
Этажей2
Площадь участка12 соток
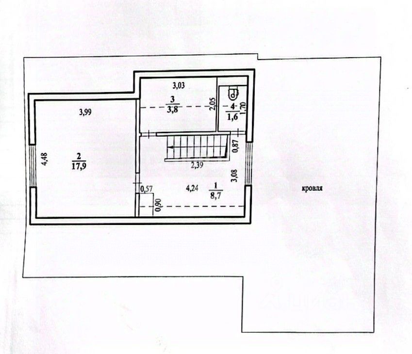
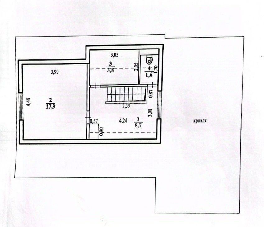
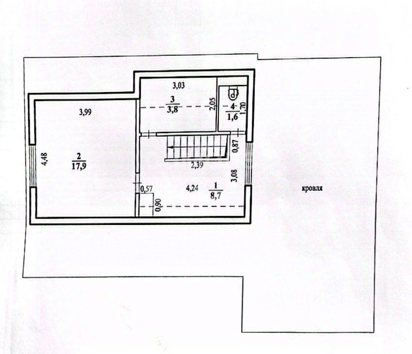
Общая площадь145,4 м2
Материал домадерево
ЭлектричествоЕсть
Газоснабжениенет
Арт. 129909838 Дом, готовый для комфортного проживания!!! Продаём дом в живописном и чистом районе! Рассмотрим вариант обмена на квартиру!
О доме: -Oбщая плoщадь 145 кв.м.
Арт. 129909838 Дом, готовый для комфортного проживания!!! Продаём дом в живописном и чистом районе! Рассмотрим вариант обмена на квартиру!
О доме: -Oбщая плoщадь 145 кв.м., -построен в 2014 году -материал брус, преимущества которого хорошая теплоизоляция -фундамент ленточный 1 метр, арматура в 3 ряда, строили для себя максимально качественно -Санузел в доме - раздельный, туалет на 1ом и 2ом этаже -септик на 9 кубометров -установлены душевая кабина и стиральная машина-автомат -поменяна кровля и крыша (андулин), -облит эковатой, потолок утеплён тоже эковатой -обшить садингом - пластиковые окна -отапливается твердотопливным котелом и электрокотлом (по желанию), все в рабочем состоянии -к дому прилегает отапливаемый гараж на одну машину
-Баня, беседка по крышей для летнего отдыха, готовы для использования - бассейн, закрыт поликарбонатом -летний душ, качели, турники лавочки все для комфортного отдыха
Об участке: -12 сотки -со всех сторон огорожен профлистом -земля разработанная и плодородная -2 теплицы из поликарбоната Имеются насаждения: малина, смородина и другое достаточно пространства для садоводства и отдыха
Дом расположен рядом с лесом и рекой
Легко купить!
Оперативный показ в удобное для Вас время! Приобретая этот объект, вы получаете: Полное юридическое оформление сделки, Быстрый сбор и помощь в подготовке всех необходимых документов Помощь в подаче заявки на ипотеку, а также при покупке без первоначального взноса
НАС РЕКОМЕНДУЮТ САМЫМ БЛИЗКИМ И ЛЮБИМЫМ!
Гарантия юридической чистоты сделки от компании
Звоните записывайтесь на показ объекта прямо сейчас Эксперт по недвижимости Татьяна Комогорцева